スタッフブログを見ていただきありがとうございます!
今日ご紹介するのプレジオ梅田。
中崎町エリアでお部屋探し中の方には要チェックの物件です。
駅からのアクセスや周辺の雰囲気など、気になるポイントをまとめましたので、ぜひ最後までご覧ください!
\おすすめ物件を今すぐチェック/
プレジオ梅田について
中崎町でお部屋探し中の方にぜひチェックしてほしいのがプレジオ梅田です!
中崎町駅から徒歩6分とアクセスの良さが魅力で、通勤や通学にも便利な立地です。
間取りは2LDKで、日当たりの良いリビングや充実した設備がそろっているので、二人暮らしやファミリーさんにぴったり!
実際に周辺を歩いてみるとスーパーや飲食店も多く、暮らしやすさを実感できるエリアです。
プレジオ梅田の賃貸情報(募集実績)


| 所在地 | 大阪市北区中崎西4丁目 |
|---|---|
| 最寄駅 | Osaka Metro谷町線/中崎町駅 徒歩6分 |
| 築年数 | 2025年10月 |
| 参考部屋タイプ | 15階|間取り|93.12㎡ |
| 構造 | 鉄筋コンクリート |
| 参考条件 | 賃料410,000円|管理費30,000円 敷金0ヶ月|礼金1ヶ月 |
プレジオ梅田の主な特徴・設備




新築 / ペット可 / オートロック / デザイナーズ / 防犯カメラ / 宅配BOX / 独立洗面台 / 角部屋 / フローリング / エレベータ / システムキッチン / バストイレ別 / 2階以上 / 室内洗濯機置き場 / バイク置き場有り / エアコン / 追い焚き / 最上階 / 保証人不要 / カウンターキッチン / 浴室乾燥機 / TVモニター付インターフォン / バリアフリー / インターネット対応 / ウォークインクローゼット / インターネット無料 / ガスコンロ対応 / コンロ2口以上 / 都市ガス / 温水洗浄便座 / 敷地内ゴミ置き場 / 駐輪場有り / マンション / シューズボックス / ルームシェア相談可
プレジオ梅田の室内詳細
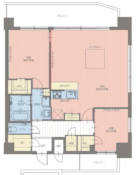
プレジオ梅田の間取り

開放感あふれるLDK約25.3帖と、ゆったりとした2つの洋室が魅力のファミリー向けマンション。収納スペースも豊富で、生活動線を意識した機能的な間取りが特徴です。天井にトップライトが設置された明るいリビング・ダイニング・キッチン。キッチンは広々としたカウンター付きで、家族との会話を楽しみながら料理ができます。
大型のウォークインクローゼット(WIC)付きで、主寝室に最適。バルコニーにも面しており、採光・通風も良好です。コンパクトながらWIC付きで、収納力抜群。子ども部屋や書斎にもぴったりです。洗面室・浴室(1620サイズ)・トイレは、動線がまとまっており日々の家事や身支度がスムーズ。洗面室横には収納棚も完備。
広めのシューズインクローゼット(SIC)やパントリー、リネン庫など、細かな収納が充実しており、すっきりとした暮らしが実現できます。
プレジオ梅田の洋室

大きな窓からたっぷりと差し込む自然光で、リビング全体が明るく開放的な空間に仕上がっています。木目調のフローリングが温かみを演出し、家族でくつろぐ時間や、友人を招いてのパーティーにもぴったり。
壁面には間接照明が施されており、夜は柔らかな光が空間を包み込み、昼間とはまた違った落ち着いた雰囲気を楽しめます。シンプルながらも上質さを感じさせるデザインは、どんなインテリアとも相性抜群。
キッチンとリビングが緩やかにつながっているので、料理をしながら家族との会話も弾みます。広さと明るさ、そして機能性を兼ね備えたリビングは、日々の暮らしをより豊かにしてくれるはずです
プレジオ梅田のキッチン

スタイリッシュで機能的なシステムキッチンは、リビング・ダイニングと一体となった対面型レイアウト。料理をしながらご家族との会話やテレビ視聴も楽しめる、開放感あふれる空間設計が魅力です。スタイリッシュで機能的なシステムキッチンは、リビング・ダイニングと一体となった対面型レイアウト。料理をしながらご家族との会話やテレビ視聴も楽しめる、開放感あふれる空間設計が魅力です。
大きめの鍋も洗いやすい広々としたステンレスシンク。浄水器一体型水栓も装備され、機能面も充実。引き出し収納には調理器具や調味料がすっきり収まり、作業効率もアップ。足元収納もあり、空間を有効活用できます。
プレジオ梅田のバスルーム

ホテルライクな高級感漂うバスルーム。
落ち着いたダークトーンのアクセントパネルに、大きなワイドミラーが映えるデザインで、空間全体をぐっと広く見せてくれます。浴槽はゆったりサイズで、一日の疲れをしっかり癒せる快適さ。追い焚き機能や浴室乾燥機も完備しているので、冬場の入浴や雨の日の洗濯物干しにも大活躍です。
さらに壁面には浴室テレビを設置。お風呂に入りながら映画やニュースを楽しめる、贅沢なリラックスタイムを叶えてくれます。スタイリッシュさと機能性を兼ね備えた、まさに理想的なバスルームです。
プレジオ梅田の脱衣所

脱衣所は入浴前後や身支度の際に欠かせないスペースです。
シンプルながらも清潔感のあるつくりで、日常的に使いやすいのが魅力。
洗面台や浴室とスムーズにつながっているので、生活動線も快適に整えられています。
タオルや洗濯物を置ける余裕のある広さがあり、家族での利用にも便利。
ちょっとした収納を工夫すれば、より使いやすく自分らしい空間にアレンジすることもできます。
毎日の生活を支える空間だからこそ、快適さと実用性を兼ね備えた仕様になっているのは大きなポイントです。
プレジオ梅田のトイレ

トイレは毎日必ず使う空間だからこそ、清潔感や使いやすさが大切です。
シンプルで落ち着いた内装になっており、どなたでも快適に利用できる雰囲気があります。
掃除がしやすい仕様になっているので、いつでも清潔に保ちやすいのもポイント。
日常の中で欠かせない設備だからこそ、安心して使える環境が整っているのは嬉しいですね。
プレジオ梅田の収納

広々としたウォークインクローゼットは、衣類や小物類を一箇所にまとめて収納できる贅沢な空間。両サイドに備え付けられたハンガーパイプは、コートやワンピース、スーツなどの長物もシワにならずに保管できます。洋服はもちろん、バッグや帽子、季節家電などもしっかり収まる広さ。収納ボックスや棚を追加して、使いやすくカスタマイズも可能です。
プレジオ梅田の周辺環境
- イオンフードスタイル 中崎町店 30m
- セブンイレブン 大阪本庄西1丁目店 240m
- スギ薬局 豊崎店 300m
- NU茶屋町プラス 410m
賃貸物件探しでお悩みの方へ
大阪で賃貸物件をお探しの方は、
エーポジションまで!
理想のお部屋探しを徹底サポートします!
